10542 Sterling  copy.JPG

WISTERIA

WISTERIA

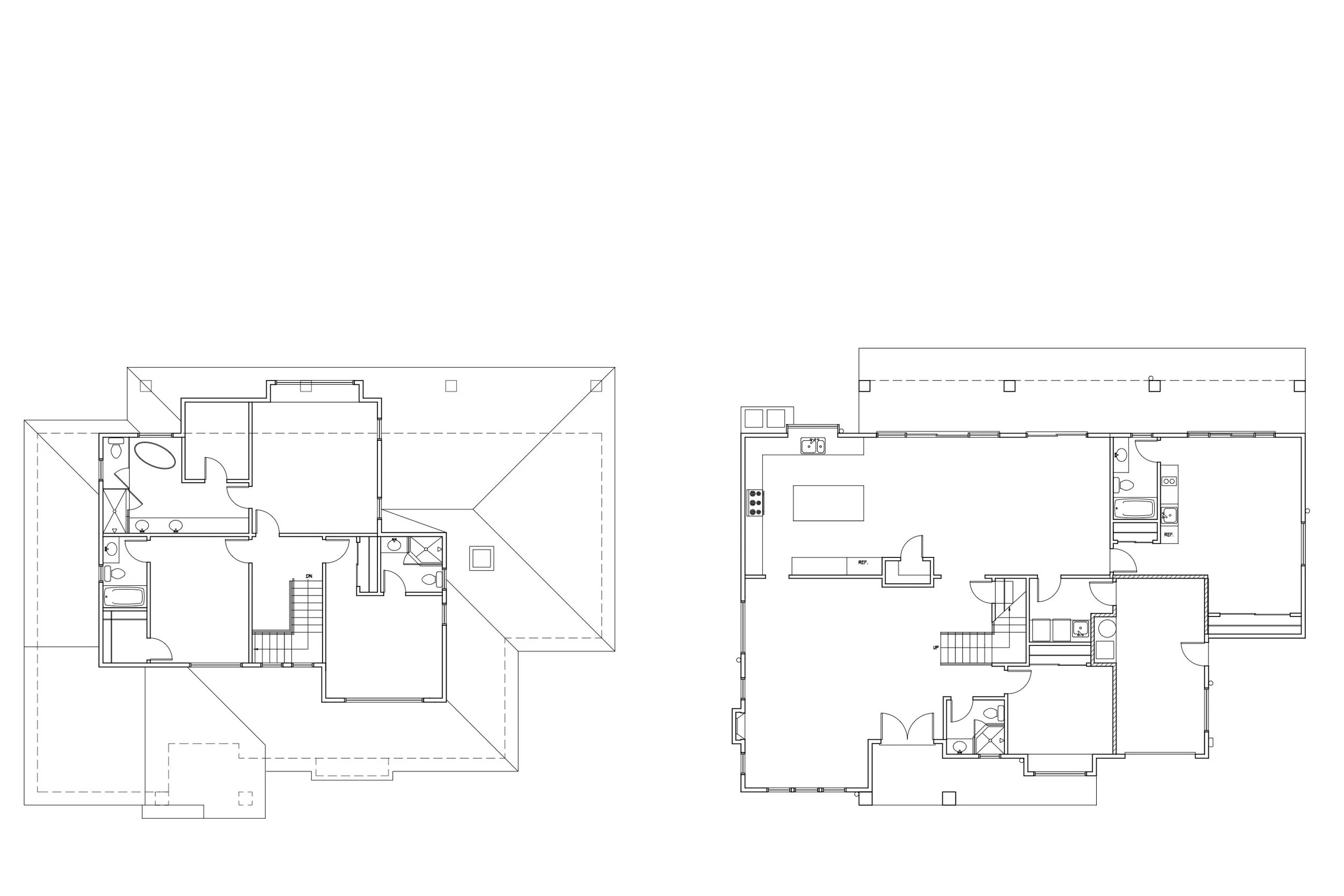
Contemporary farmhouse in prime Barron Park, Palo Alto

4106 Wisteria Lane • Palo Alto

Lot: 7313 sqft

Living space: 3155.6 sqft (5 bedrooms, 5 bath)

JADU: 441 sqft

1 Car Garage: 228 sqft

Covered Patio & Porch: 365 sqft

Call (408) 893-8007 for more information